Կոմերցիոն, Միկոյան փող, Դավթաշեն, (Երևան)

Կոմերցիոն | Վարձ
Երևան, Դավթաշեն, Միկոյան փող
ID #62313
$ 11,515
  • ՍԵՆ.
  • 580 Մ 2
  • 2/16
  • 3.0 Մ
  • 5+
ՇԻՆՈՒԹՅԱՆ ՏԻՊԸ
Նորակառույց
ՎԻՃԱԿԸ
Վերանորոգված

ԿԵՆՑԱՂԱՅԻՆ ՀԱՐՄԱՐՈՒԹՅՈՒՆՆԵՐ

  • Ջեռուցում
  • Մշտական ջուր
  • Ինտերնետ
  • Գազ
  • Խմելու ջուր
  • Էլեկտրոէներգիա
  • Օդորակիչ
  • Տաք ջուր

ԼՐԱՑՈՒՑԻՉ

  • Կահույք
  • Սալիկ
  • Ավտոհանգրվան
  • Կանգառի մոտ
  • Տեխնիկա
  • Երկաթյա դուռ
  • Անվտանգության համակարգ
  • Արևկող
  • Եվրոպատուհան
  • Բաց պատշգամբ
  • Լամինատ
  • Վերելակ

ինֆորմացիա

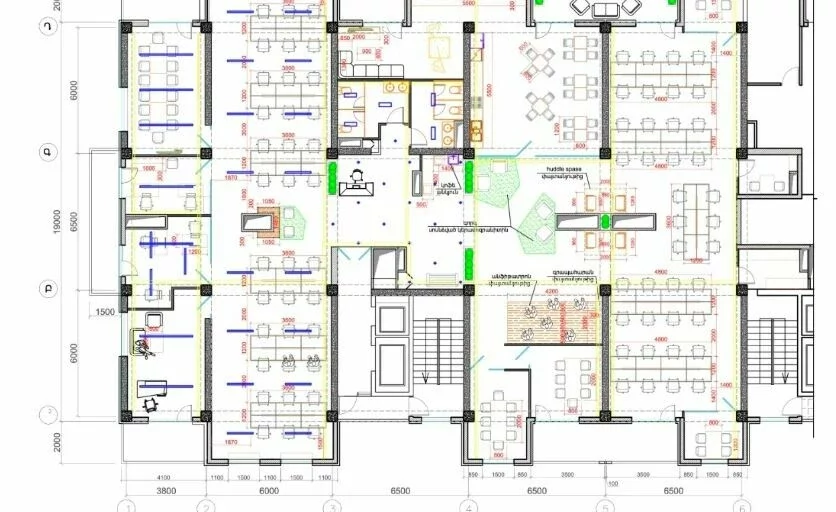
Երկարաժամկետ վարձակալության է տրվում նորակառույց open space գրասենյակային տարածք Դավիթաշենում։ Տարածքը գտնվում է նորակառույց բնակելի շենքի 2րդ հարկում (զբաղեցնում է ամբողջ հարկը) ։ 4 open space աշխատանքային զոնաներ Ընդարձակ խոհանոց Հանգստի սենյակ 5 հանդիպումների սենյակ 5 առանձին աշխատանքային սենյակներ Ընդարձակ ամֆիթատրոն 7 պատշգամբ Տարածքը հանձնվում է ամբողջ գույքի և տեխնիկայի հետ միասին, միայն երկարաժամկետ վարձակալության։ Տարածքի հատակը բարձրակարգ վինիլից է, որը ապահովվում է անաղմուկ միջավայր։ Առկա է MIDEA VR8 բարձրակարգ հովացման և ջեռուցման համակարգ։

Նմանատիպ օրինակներ

Կոմերցիոն
Վարձ
Տիգրան Պետրոսյան փող., Դավթաշեն, ( Երևան )
$ 9,683 #59773
250
1/1
Կոմերցիոն
Վարձ
Տիգրան Պետրոսյան փող., Դավթաշեն, ( Երևան )
$ 11,776 #46988
800
1/2
Կոմերցիոն
Վարձ
Փիրումյանների փող., Դավթաշեն, ( Երևան )
$ 9,900 #61525
1820
1/5
Կոմերցիոն
Վարձ
Տիգրան Պետրոսյան փող., Դավթաշեն, ( Երևան )
$ 10,468 #52496
1000
1/4