Կոմերցիոն, Արամի փող, Կենտրոն, (Երևան)

Կոմերցիոն | Վարձ
Երևան, Կենտրոն, Արամի փող
ID #31319
$ 6,000
  • ՍԵՆ.
  • 180 Մ 2
  • 1/11
  • 3.0 Մ
  • 2
ՇԻՆՈՒԹՅԱՆ ՏԻՊԸ
Նորակառույց
ՎԻՃԱԿԸ
Վերանորոգված

ԿԵՆՑԱՂԱՅԻՆ ՀԱՐՄԱՐՈՒԹՅՈՒՆՆԵՐ

  • Ջեռուցում
  • Ինտերնետ
  • Էլեկտրոէներգիա
  • Գազ
  • Օդորակիչ
  • Մշտական ջուր
  • Տաք ջուր
  • Խմելու ջուր

ԼՐԱՑՈՒՑԻՉ

  • Կահույք
  • Խորդանոց
  • Ճանապարհամերձ
  • Տեխնիկա
  • Եվրոպատուհան
  • Բաց պատշգամբ
  • Սալիկ
  • Վերելակ

ինֆորմացիա

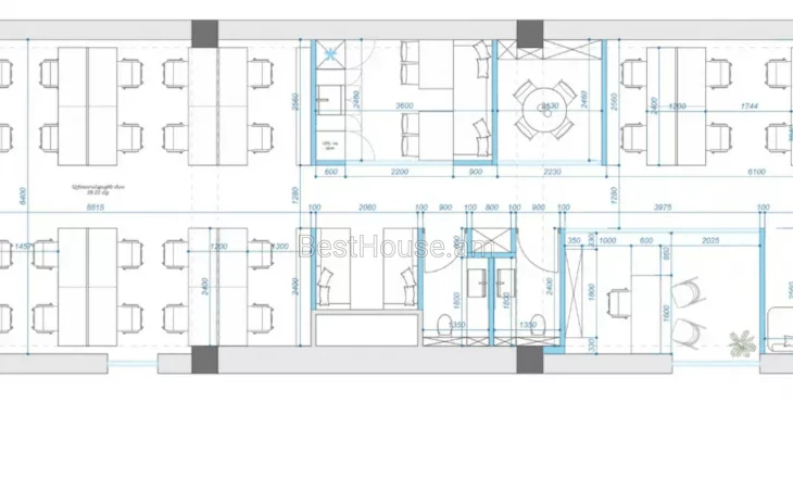
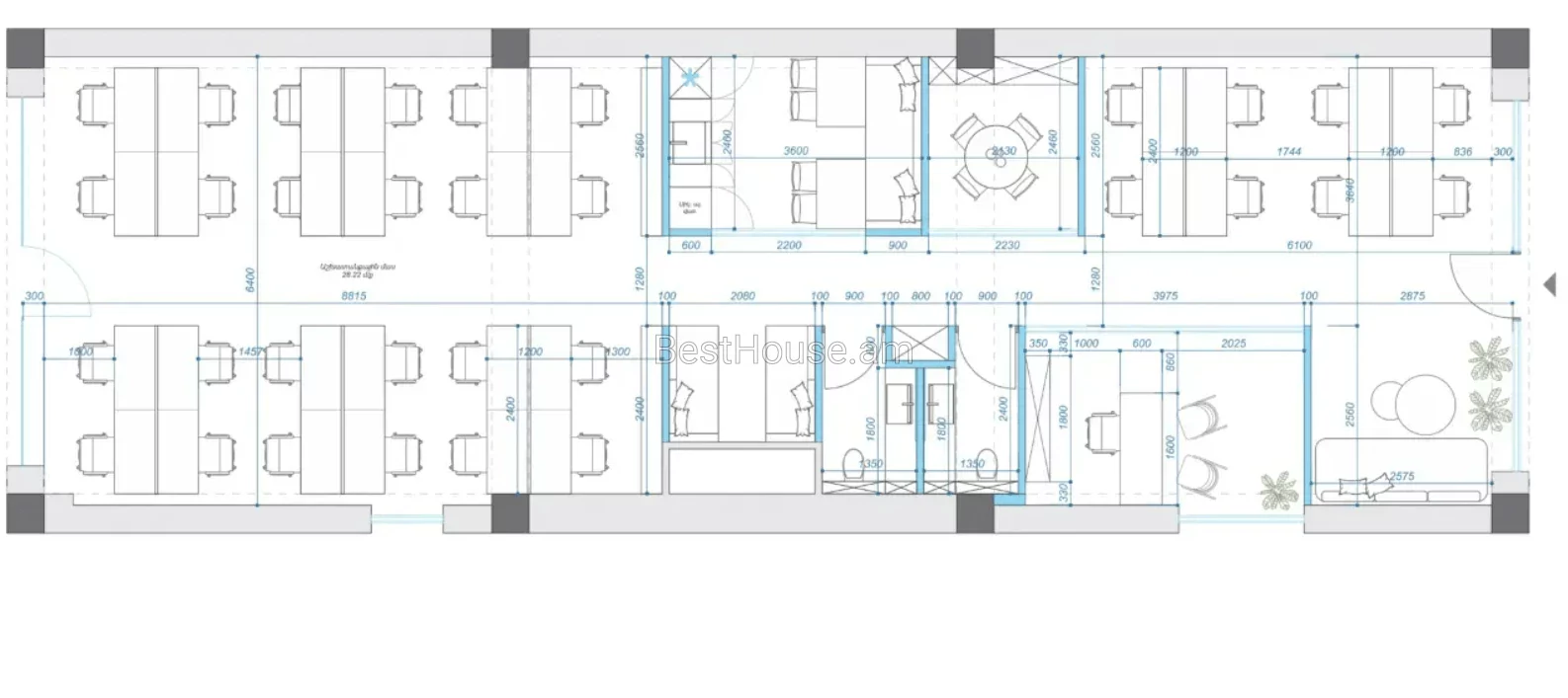
Վարձակալությամբ է հանձնվում մինչև 35 անձի համար բարձրակարգ վերանորոգված գրասենյակային տարածք Արամի և Աբովյան փողոցների խաչմերուկի մոտակայքում։ Գտնվում է Արամի 4/3 նորակառույց շենքի 1ին հարկում։ Պատուհաններից մեկը նայում է Երևանի ազգային պատկերասրահին։ Ունի երկու մուտք՝ մեկը Արամի փողոցից (Հանրապետության հրապարակ մետրոյի կայարանի մոտակայքից), իսկ մյուսը Աբովյան փողոցից։ Ունի մինչև 35 աշխատատեղի հնարավորություն (տես գծագրերը), խոհանոցային հատված իր նոր տեխնիկայով և կահույքով, երկու հանգստի հատվածներ, հանդիպումների սենյակ, Մենեջերի սենյակ, որը կարող է վերածվել երկրորդ հանդիպումների սենյակի։ Ինչպես նաև մեծ բացօթյա տերասսա՝ գրասենյակի դիմաց։ Ունի բարձրակարգ օդափոխության, հովացման և ջեռուցման համակարգ Gree: Յուրաքանչյուր սենյակ ունի իր օդորակիչը առանձին տերմոստատով։ Գրագետ բաժանված է զոնաների, կահավորված է անհրաժեշտ սեղաններով, յուրաքանչյուրը իր հոսանքի կետերով։ Մեկ անձին բաժին ընկնող սեղանի հատվածը 120սմ է։ Վարձակալության է հանձնվում ողջ կահույքի հետ միասին։ Տարածքի ներքին մակերեսը մոտ 135քմ է + բացօթյա հատված մոտ 50քմ։ Նորակառույց շենքը ընձեռնում է ստորգետնյա պարկինգի հնարավորություն՝ հավելավճարի դիմաց։

Նմանատիպ օրինակներ

Կոմերցիոն
Վարձ
Ձորափի փող, Կենտրոն, ( Երևան )
$ 5,000 #33035
1000
10/13
Կոմերցիոն
Վարձ
Հյուսիսային պող, Կենտրոն, ( Երևան )
$ 5,968 #46870
163
8/10
Կոմերցիոն
Վարձ
Ծիծեռնակաբերդի խճուղի, Կենտրոն, ( Երևան )
$ 6,013 #55050
330
1/15
Կոմերցիոն
Վարձ
Վարդանանց փող, Կենտրոն, ( Երևան )
$ 6,536 #48291
260
1/5