Կոմերցիոն, Ծիծեռնակաբերդի խճուղի, Կենտրոն, (Երևան)

Կոմերցիոն | Վարձ
Երևան, Կենտրոն, Ծիծեռնակաբերդի խճուղի
ID #47237
$ 25,000
  • ՍԵՆ.
  • 1350 Մ 2
  • 1/6
  • 3.0 Մ
  • 5+
ՇԻՆՈՒԹՅԱՆ ՏԻՊԸ
Նորակառույց
ՎԻՃԱԿԸ
Վերանորոգված

ԿԵՆՑԱՂԱՅԻՆ ՀԱՐՄԱՐՈՒԹՅՈՒՆՆԵՐ

  • Ջեռուցում
  • Գազ
  • Տաք ջուր
  • Օդորակիչ
  • Ինտերնետ

ԼՐԱՑՈՒՑԻՉ

  • Բաց պատշգամբ
  • Կահույք
  • Եվրոպատուհան
  • Արևկող
  • Կանգառի մոտ
  • Գեղեցիկ տեսարան
  • Վերելակ
  • Անվտանգության համակարգ
  • Ավտոհանգրվան

ինֆորմացիա

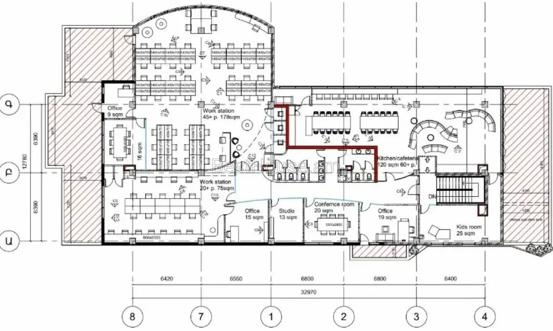
Վարձակալության է հանձնվում նոր վերանորոգած գրասենյակային տարածք Դալմա առևտրի Կենտրոնի հարևանությամբ Բիզնես Կենտրոնում: Բոլոր կոմունիկացիաներն ապահոված էն, հակահրդեհային և անվտանգության համակարգ, երեք մեծ սրահ, կոնֆերանսի սենյակներ, աշխատասենյակներ: Վերանորոգումը նոր էավարտվել: Տվյալ գնի մեջ ներարվում է նաև ավելացված արժեքի հարկը (НДС)։

Նմանատիպ օրինակներ

Կոմերցիոն
Վարձ
Ծիծեռնակաբերդի խճուղի, Կենտրոն, ( Երևան )
$ 26,214 #59534
2500
2/6
Կոմերցիոն
Վարձ
Մաշտոցի պող, Կենտրոն, ( Երևան )
$ 23,593 #53905
1740
1/4
Կոմերցիոն
Վարձ
Հանրապետության փող, Կենտրոն, ( Երևան )
$ 26,214 #46814
800
1/16
Կոմերցիոն
Վարձ
Ամիրյան փող, Կենտրոն, ( Երևան )
$ 25,000 #59262
420
1/10