Կոմերցիոն, Տերյան փող, Կենտրոն, (Երևան)

Կոմերցիոն | Վարձ
Երևան, Կենտրոն, Տերյան փող
ID #54589
$ 2,875
  • ՍԵՆ.
  • 197 Մ 2
  • 4/5
  • 3.0 Մ
  • 5+
ՇԻՆՈՒԹՅԱՆ ՏԻՊԸ
Մոնոլիտ
ՎԻՃԱԿԸ
Վերանորոգված

ԿԵՆՑԱՂԱՅԻՆ ՀԱՐՄԱՐՈՒԹՅՈՒՆՆԵՐ

  • Ջեռուցում
  • Մշտական ջուր
  • Ինտերնետ
  • Գազ
  • Խմելու ջուր
  • Էլեկտրոէներգիա
  • Օդորակիչ
  • Տաք ջուր

ԼՐԱՑՈՒՑԻՉ

  • Կահույք
  • Տեխնիկա
  • Եվրոպատուհան
  • Փակ պատշգամբ

ինֆորմացիա

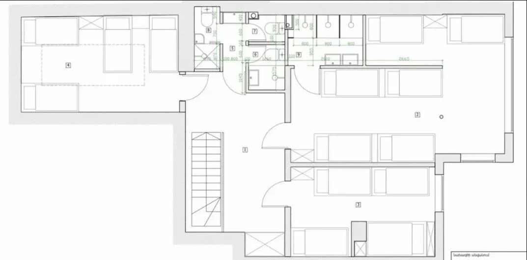
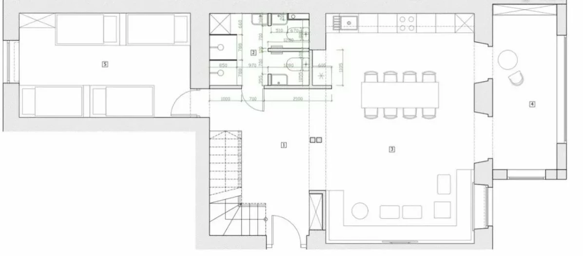
Վարձով է տրվում դուպլեքս բազմաֆունկցիոնալ տարածք Երևանի կենտրոնում, Տերյան փողցում։ Տարածքը կապիտալ վերանորոգված է, ունի 5 սանհանգույց, 4 առանձին սենյակներ, մեկ մեծ սենյակ՝ միացված խոհանոցին ստուդիո ոճով, երկու փակ պատշգամբ՝ մեծ, վիտրաժային պատուհաններով։ Տարածքն ունի անհատական տաքացման համակարգ, յուրաքանչյուր սենյակում առկա է օդորակիչ: Բակում կա բացօթյա մասնավոր կայանատեղի, կտրամադրվի մեկ անձնական հեռակառավարման սարք։

Նմանատիպ օրինակներ

Կոմերցիոն
Վարձ
Ե. Քոչար փող, Կենտրոն, ( Երևան )
$ 2,500 #43154
52
1/2
Կոմերցիոն
Վարձ
Սայաթ-Նովայի պող, Կենտրոն, ( Երևան )
$ 3,000 #52964
150
1/4
Կոմերցիոն
Վարձ
Կորյուն փող, Կենտրոն, ( Երևան )
$ 3,136 #45500
83
1/5
Կոմերցիոն
Վարձ
Հանրապետության փող, Կենտրոն, ( Երևան )
$ 3,000 #29452
158
1/5